VILLA COLACURTO – Carovigno
Terreno con progetto approvato
Descrizione
Villa Colacurto – Design contemporaneo e natura autentica nella campagna di Carovigno
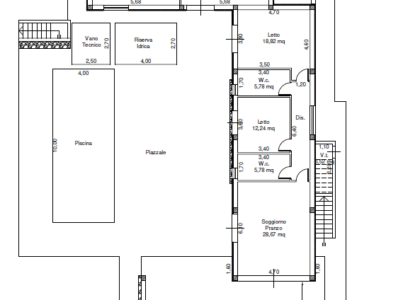
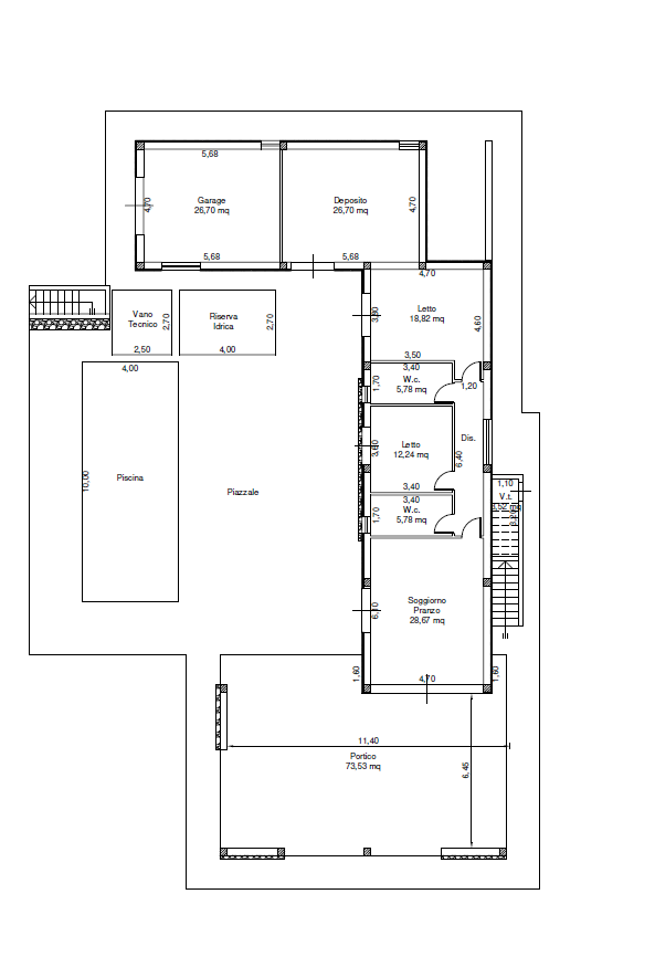
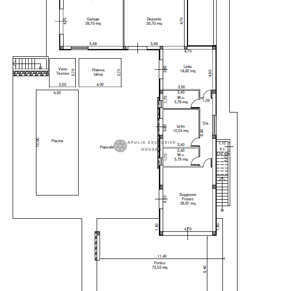
Villa Colacurto è una nuova realizzazione che unisce linee moderne, comfort sostenibile e un profondo legame con il paesaggio mediterraneo. Situata a soli 3 km dal centro di Carovigno, immersa in un terreno di circa 9.000 mq punteggiato da ulivi secolari e macchia mediterranea, questa villa di circa 170 mq rappresenta una perfetta sintesi tra quiete rurale e architettura di qualità.
Progettata per offrire una connessione autentica con la natura, la villa si sviluppa in due corpi indipendenti:
-
Il primo blocco ospita una luminosa zona giorno con cucina open-space, due camere da letto e un bagno.
-
Il secondo blocco è pensato per l’ospitalità e la privacy, con due camere matrimoniali ciascuna dotata di bagno en-suite.
Gli spazi esterni saranno caratterizzati da piazzali rifiniti in graniglia di pietra bianca, pensati per armonizzarsi con il contesto naturale e offrire ambienti funzionali e scenografici. Ampie superfici pianeggianti e zone ombreggiate completano un progetto perfettamente inserito nel paesaggio.
La villa sarà costruita con materiali di prima qualità, soluzioni eco-sostenibili e tecnologie all’avanguardia. Il sistema di climatizzazione, composto da ventilconvettori con pompa di calore in Classe A, garantisce alta efficienza energetica e basso consumo. Completano le dotazioni infissi in PVC ad alte prestazioni con vetro-camera a gas argon, tapparelle elettriche e portoncino blindato certificato Euro 4.
Possibilità su richiesta:
-
Personalizzazione degli interni e degli esterni
-
Progetto “chiavi in mano” con finiture a scelta
-
Realizzazione di una piscina privata
Dove si trova
Villa Colacurto sorge nella tranquilla campagna di Carovigno (Brindisi), in Contrada Colacurto, una zona strategica a breve distanza dalla costa adriatica e dal cuore della Valle d’Itria. Il borgo storico di Carovigno dista appena 3 km, mentre Ostuni si raggiunge in 7 km. La posizione è ideale per esplorare l’anima più autentica della Puglia, tra colline, masserie, spiagge incontaminate e borghi ricchi di storia.
In meno di 30 minuti è possibile visitare alcune delle località più affascinanti della regione:
Cisternino (19,9 km), Locorotondo (28,2 km), Martina Franca (27,1 km), Grottaglie (25,4 km), Francavilla Fontana (20,6 km), Fasano (28,7 km), Polignano a Mare e Monopoli. La riserva naturale di Torre Guaceto, area WWF protetta, è a soli 5 km.
Perché scegliere Villa Colacurto
Un rifugio elegante nella campagna pugliese, pensato per chi desidera vivere in armonia con la natura, senza rinunciare al comfort e all’estetica. Villa Colacurto è la scelta ideale per chi sogna una residenza esclusiva nel cuore della Puglia, da vivere ogni giorno o come investimento di valore.
Caratteristiche
Stato Immobile
DA REALIZZARE
Superficie Immobile
170 mq
Superficie Terreno
9000 mq
Vani
7
Camere da letto
4
Bagni
2
Piscina
SI
Informazioni sulla Posizione
Distanza dal mare:
4 KM
Distanza Aeroporto Brindisi:
20 KM
Distanza Aeroporto Bari:
60 KM
Distanza Spiaggia di Sabbia:
4 KM
Distanza Centro Abitato:
3 KM
Distanza Negozi e Ristoranti:
3 KM





