APPROVED PROJECT WITH SEA VIEW POOL – Carovigno
Description
Description
An exclusive opportunity in one of the most captivating areas of Alto Salento: just a few minutes from the town of Carovigno and the beaches of the Adriatic coast, we offer for sale a panoramic plot of approximately 4,262 sqm, complete with approved project for the construction of a single-family villa with swimming pool and sea view.
The land is located in a strategic position, immersed in the peaceful countryside yet not isolated, with excellent exposure and an open view stretching to the horizon.
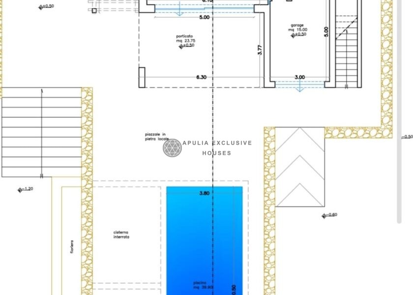
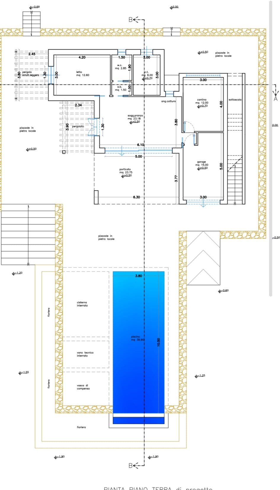
The Project
The approved project includes the construction of a villa with a clean, contemporary design, perfectly integrated into the surrounding landscape.
The architectural layout has been carefully designed to ensure comfort and functionality, with bright interiors and a layout aimed at enhancing the views over the natural landscape and the sea.
Customisation options available on request:
-
Choice of interior and exterior finishes
-
Turnkey service
-
Full landscaping and exterior completion as per project
Location
The property is located in Carovigno, a peaceful and increasingly sought-after area in the Apulian countryside, just 3 km from the town centre, 10 km from Ostuni, and 5 km from the beaches and the Torre Guaceto Natural Reserve.
Within 30 minutes, you can reach many of the region’s most charming destinations: Cisternino, San Vito dei Normanni, Fasano, Locorotondo, Martina Franca, and Polignano a Mare. Brindisi Airport is approximately a 25-minute drive.
Why Choose This Property
-
Guaranteed sea view and authentic natural surroundings
-
Approved project, ready to start building
-
Ideal as a private residence, holiday home, or investment
-
Customisable with full local technical support
A genuine slice of Puglia where you can build a modern villa surrounded by olive trees and overlooking the sea — a complete solution for those seeking privacy, beauty, and a high quality of life.
Why It’s Worth Choosing
An elegant retreat in the Apulian countryside, designed for those who wish to live in harmony with nature without giving up comfort and style.
The ideal choice for anyone dreaming of an exclusive residence in the heart of Puglia — whether to enjoy every day or as a high-value investment.
Features
Building Status
TO BE REALISED
Building's Surface
70 mq
Land Surface
4262 mq
Kitchen
1
Bathrooms
1
Swimming Pool
TO BE REALISED
Location Info
Position:
countryside
Distance from the Sea:
3 KM
Distance from Brindisi Airport:
20 KM
Distance from Bari Airport:
80 KM
Distance from the Beach:
3 KM
Distance from City Centre:
3 KM
Distance from Shops and Restaurants:
3 KM






